Engelli Asansörü Ölçüleri
Engelli asansörüne ihtiyacı olup yaptırmak isteyenler için engelli asansörü ölçüleri çok önemlidir. Yaptırmayı düşündükleri yerin ölçülerine uygun bir asansör modeli bulmaları gerekmekte ve bu ölçülerin de ihtiyaçlarını karşılayabilmesi gerekmektedir.
Gördüğünüz gibi iki ayrı ölçüden bahsediyoruz. Birincisi asansörün yapılacağı yerin ölçüleri, en boyu yüksekliği net olarak belirlenmelidir. Duvarlarda eğrilik olabileceği düşünülerek mümkün olduğunca doğru ve net ölçüler alınmalıdır. Müşteriler veya son kullanıcılar genelde bu ölçüleri tam olarak alamazlar, çünkü bu konuda eğitimleri bulunmayabilir. Sadece metreyi tutmak ve okumak yeterli değildir. Belki duvar üzerinde asansörün hareketini etkileyebilecek bir çıkıntı, bir eğrilik bulunmaktadır ve bu konuda eğitimli olmayan birisi bunun farkına varamayabilir.
İkinci ölçü ise üretilecek engelli asansörünün ölçüleridir. Bu ölçüler şu sebeple önemlidir ki, kullanacak olan engellinin durumuna göre asansörün içerisinde rahat edebilsin.
Diyelim ki; asansör yapılacak yer 100 x 100 cm ve bunun içerisinde tekerlekli sandalyenin girebileceği bir asansör platformu isteniyor. Bu örneği inceleyelim. Teknik olarak 100×100 cm bir alana sığabilecek bir engelli asansörü yapılması mümkündür, kimse buna itiraz edemez. Ama tekerlekli sandalyenin ölçüleri düşünüldüğünde; ortalama bir tekerlekli sandalyenin ölçüleri 70 cm genişlik ve 110 cm uzunluk olarak kabul edersek, fizik kanunu olarak 100×100 cm lik bir alan içerisinde bırakın asansörü, tekerlekli sandalyenin kendisi bile bu alana sığamaz.
Dolayısı ile bu iki ölçünün de engellinin kullanım amacına uygun değerde olması gerekmektedir. Yani optimum nokta belirlenmelidir.
Gördüğünüz gibi engelli asansörü ölçüleri, asansör yaptırmayı düşünenler için çok önemlidir. Hem yaptırmayı düşündükleri yere uygun olacak mı ve hemde kullanışlı olacak mı?
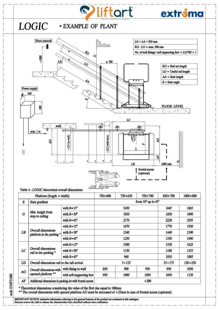
Aşağıda bazı engelli asansörü ölçülerini bulabileceksiniz. Umarız arayışınız için faydası olur.
Mart 2020

